Projektbeispiele



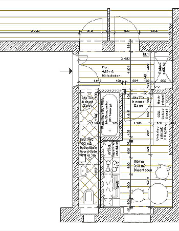
Denkmalgeschützte Jugendstilvilla "Haus Sander" von 1913

Sanierung Gartenanlage, Fassaden, Mängelbeseitigung
Ort: Frankfurt am Main

vorher

Sanierungsplanung - Jugendstilvilla - Frankfurt am Main Sanierungsplanung - Jugendstilvilla - Frankfurt am Main Sanierungsplanung - Jugendstilvilla - Frankfurt am Main Sanierungsplanung - Jugendstilvilla - Frankfurt am Main


nachher

Sanierungsplanung - Jugendstilvilla - Frankfurt am Main Sanierungsplanung - Jugendstilvilla - Frankfurt am Main



Hochhaus-Ensemble von 1971, Bürogebäude

Standortanalyse und Designkonzept
Ort: Frankfurt-Niederrad


Designkonzept-Bürogebäude-Frankfurt Designkonzept-Bürogebäude-Frankfurt



Wohnhaus von ca. 1903, Straßen- und Hoffassade

Mängelbeseitigung, Sanierung, Abgeschlossenheitsbescheinigung Dachgeschoss
Ort: Berlin-Schöneberg

vorher

Sanierungsplanung - Wohnhaus - Berlin Sanierungsplanung - Wohnhaus - Berlin


nachher

Sanierungsplanung - Wohnhaus - Berlin Sanierungsplanung - Wohnhaus - Berlin



Wohnhaus von ca. 1955, Wohnräume

Umbauplanung und Sanierung
Ort: Berlin-Wedding

vorher

Umbauplanung und Sanierung - Wohnhaus von ca. 1955, Berlin Wedding Umbauplanung und Sanierung - Wohnhaus von ca. 1955, Berlin Wedding


nachher

Umbauplanung und Sanierung - Wohnhaus von ca. 1955, Berlin Wedding Umbauplanung und Sanierung - Wohnhaus von ca. 1955, Berlin Wedding



Gewerbezentrum von ca. 1970, Büroflächen

Umbauplanung und Sanierung
Ort: Berlin-Charlottenburg


vorher

Umbauplanung und Sanierung - Gewerbezentrum von ca. 1970, Büroflächen in Berlin Charlottenburg Umbauplanung und Sanierung - Gewerbezentrum von ca. 1970, Büroflächen in Berlin Charlottenburg


nachher

Umbauplanung und Sanierung - Gewerbezentrum von ca. 1970, Büroflächen in Berlin Charlottenburg Umbauplanung und Sanierung - Gewerbezentrum von ca. 1970, Büroflächen in Berlin Charlottenburg Umbauplanung und Sanierung - Gewerbezentrum von ca. 1970, Büroflächen in Berlin Charlottenburg Umbauplanung und Sanierung - Gewerbezentrum von ca. 1970, Büroflächen in Berlin Charlottenburg



Wohn- und Geschäftshaus von ca. 1922

Sanierungskonzept straßenseitige Fassaden
Ort: Berlin-Charlottenburg


vorher

Wohn- und Geschäftshaus von ca. 1922, Straßenseitige Fassaden in Berlin Charlottenburg, Sanierungskonzept


nachher

Wohn- und Geschäftshaus von ca. 1922, Straßenseitige Fassaden in Berlin Charlottenburg, Sanierungskonzept



Wohnhaus von ca. 1910, Wohnräume

Umbau und Sanierung
Ort: Berlin-Charlottenburg


Wohnhaus von ca. 1910, Wohnräume in Berlin Charlottenburg, Umbau und Sanierung Wohnhaus von ca. 1910, Wohnräume in Berlin Charlottenburg, Umbau und Sanierung


vorher / nachher

Wohnhaus von ca. 1910, Wohnräume in Berlin Charlottenburg, Umbau und Sanierung Wohnhaus von ca. 1910, Wohnräume in Berlin Charlottenburg, Umbau und Sanierung



Denkmalgeschützte Mies-van-der-Rohe-Villa von 1917

Fassaden, Terrassen, Interieur
Ort: "Villa Urbig" in Potsdam-Babelsberg

Sanierungsplanung:
www.Immobilienplanung.com

Ausschreibung und Bauleitung:
www.vogel-architekten.de

Raumkonzepte + Interior Design:
www.zauleck.de


Denkmalgeschützte Mies-van-der-Rohe-Villa von 1917, Villa Urbig in Potsdam-Babelsberg, Fassaden, Terrassen, Interieur Denkmalgeschützte Mies-van-der-Rohe-Villa von 1917, Villa Urbig in Potsdam-Babelsberg, Fassaden, Terrassen, Interieur

vorher

Denkmalgeschützte Mies-van-der-Rohe-Villa von 1917, Villa Urbig in Potsdam-Babelsberg, Fassaden, Terrassen, Interieur Denkmalgeschützte Mies-van-der-Rohe-Villa von 1917, Villa Urbig in Potsdam-Babelsberg, Fassaden, Terrassen, Interieur


nachher

Denkmalgeschützte Mies-van-der-Rohe-Villa von 1917, Villa Urbig in Potsdam-Babelsberg, Fassaden, Terrassen, Interieur Denkmalgeschützte Mies-van-der-Rohe-Villa von 1917, Villa Urbig in Potsdam-Babelsberg, Fassaden, Terrassen, Interieur Denkmalgeschützte Mies-van-der-Rohe-Villa von 1917, Villa Urbig in Potsdam-Babelsberg, Fassaden, Terrassen, Interieur Denkmalgeschützte Mies-van-der-Rohe-Villa von 1917, Villa Urbig in Potsdam-Babelsberg, Fassaden, Terrassen, Interieur Denkmalgeschützte Mies-van-der-Rohe-Villa von 1917, Villa Urbig in Potsdam-Babelsberg, Fassaden, Terrassen, Interieur Denkmalgeschützte Mies-van-der-Rohe-Villa von 1917, Villa Urbig in Potsdam-Babelsberg, Fassaden, Terrassen, Interieur Denkmalgeschützte Mies-van-der-Rohe-Villa von 1917, Villa Urbig in Potsdam-Babelsberg, Fassaden, Terrassen, Interieur Denkmalgeschützte Mies-van-der-Rohe-Villa von 1917, Villa Urbig in Potsdam-Babelsberg, Fassaden, Terrassen, Interieur


↑ zum Seitenanfang